OA
电子样册

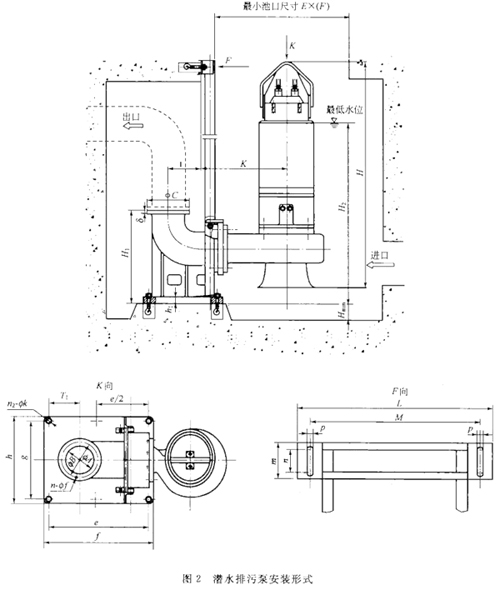
QW系列潜水排污泵安装形式

发布日期:2014-04-26

(1)自动耦合式安装

在这种安装形式中,泵与耦合装置相连,耦合底座固定于泵坑底部(在建设污水坑时,先预埋好地脚螺丝,使用时将耦合底座固定即可),泵可在导轨(导杆)中上下移动;当泵放下时,耦合装置自动地与耦合底座耦合,而提升时泵与耦合底座自动脱落。这种方式可根据用户要求配备液位开关、中间端子箱及自动保护控制柜。

(2)QW系列潜水排污泵安装形式图及其耦合式安装尺寸表

潜水排污泵安装形式如图2所示,QW系列潜水排污泵耦合式安装尺寸如表2所列。

潜水排污泵安装形式_1.jpg